新潟での不動産投資・収益物件、投資用不動産のことなら日生不動産販売へ
ご購入・運用 TOP投資収益物件物件詳細情報
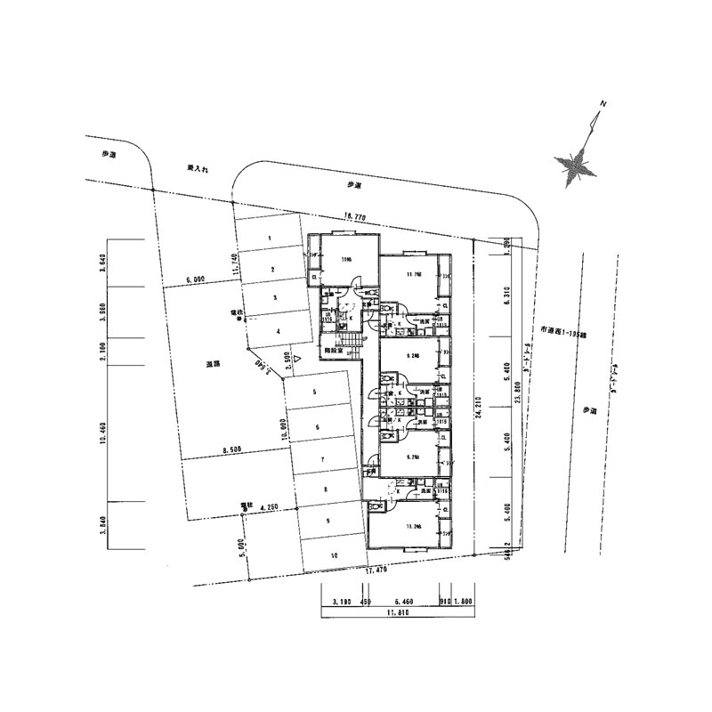
BUENA関屋堀割町
![]()
| 価格 | 7,440万円(税込) | 想定利回り | 8.78% | 想定収入(年間) | 614.4万円 |
|---|
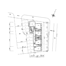
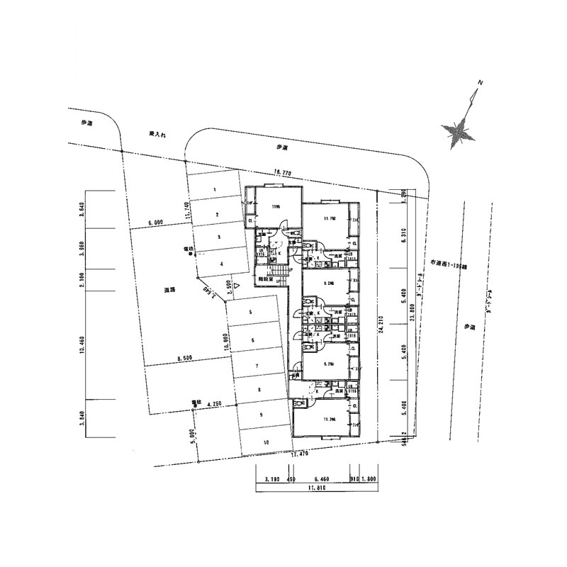
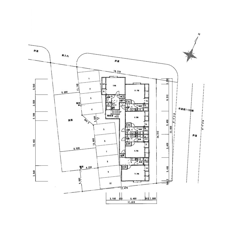
| 所在地 | 新潟県新潟市西区関屋堀割町1834番98 | 延床面積 | 353.63m²(106.97坪) |
|---|---|---|---|
| 交通 | JR「青山駅」から徒歩約18分 | 土地面積 | 433.98m²(131.27坪) |
| 築年月 | 平成18年 3月 |
写真を読み込み中...
![]()
![]()
![]()
![]()
![]()
![]()
![]()
![]()
![]()
![]()
![]()
![]()
![]()
![]()
![]()
![]()
![]()
![]()
| 想定収入(年間) | 614.4万円 | 想定利回り | 8.78% |
|---|
| 所在地 | 新潟県新潟市西区関屋堀割町1834番98 | ||
|---|---|---|---|
| 交通 | JR「青山駅」から徒歩約18分 | ||
| 価格 | 7,440万円(税込) | ||
| 延床面積 | 353.63m²(106.97坪) | 土地面積 | 433.98m²(131.27坪) |
| 築年月 | 平成18年 3月 | 地目 | 宅地 |
| 建物構造 | 木造 | 建ぺい率 | 50% |
| 総階数 | 2階建て | 容積率 | 100% |
| 間取総戸数等 | 1K×8戸、1K+S×2戸 | セットバック | |
| 接道状況 | 北側幅員 18 m 市道に接道、西側幅員 6 m 私道に接道 | 都市計画 | 市街化区域 |
| 借地情報 | 防火規制 | ||
| 私道負担 | 有り | 現況(土地) | |
| 現況 | 用途地域 | 第一種低層住居専用地域 | |
| 土地権利 | 所有権 | 国土法届出 | |
| 取引態様 | 一般媒介 | 引渡 | |
| 設備 | |||
| 駐車場 | 10台 | ||
| 備考 | |||